South Carolina Lowcountry Residence
Palmetto Bluff, South Carolina
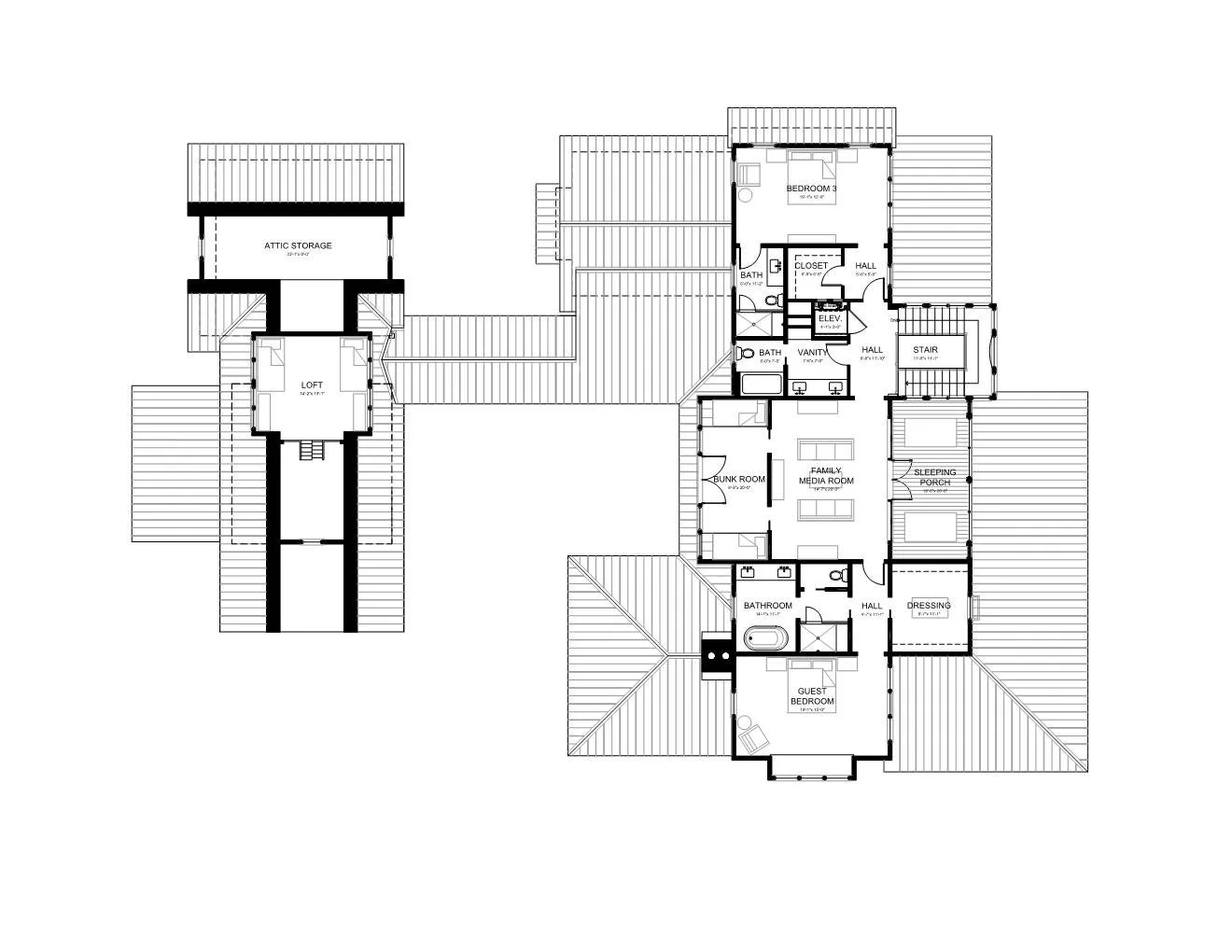
Located at the intersection of Old Moreland Road and Dove Field—an enclave of grand manor homes overlooking the marsh, this 5-bedroom spec home was designed to gracefully transition in scale from the neighboring manor homes to Cottage Row. The two-story main house is strategically positioned adjacent to the marsh, offering breathtaking views. The smaller building wing, which includes the garage and guest cottage, is secondary and connected to the main house by a covered breezeway. Two landscaped courtyards containing a fire pit and fountain are created in between. Co-designed with fellow architect, Eric Anderson.
Elevations and Floorplans
Photographed by Richard Best and Palmetto Bluff
Designed by Christian Barlock and Eric Anderson at 4240

