House in Southwest Colorado
Pagosa Springs, Colorado
Set against the stunning San Juan Mountains in Southwestern Colorado, the residence boasts panoramic views of the Navajo and Banded Peaks to the east, Pagosa Peak to the north, and an aspen-filled valley to the west. This picturesque backdrop makes it an ideal setting for this western home. Two guest cabins serve as gateways, each thoughtfully designed to capitalize on unique site-specific views and micro-environments within the Crowley Ranch preserve.
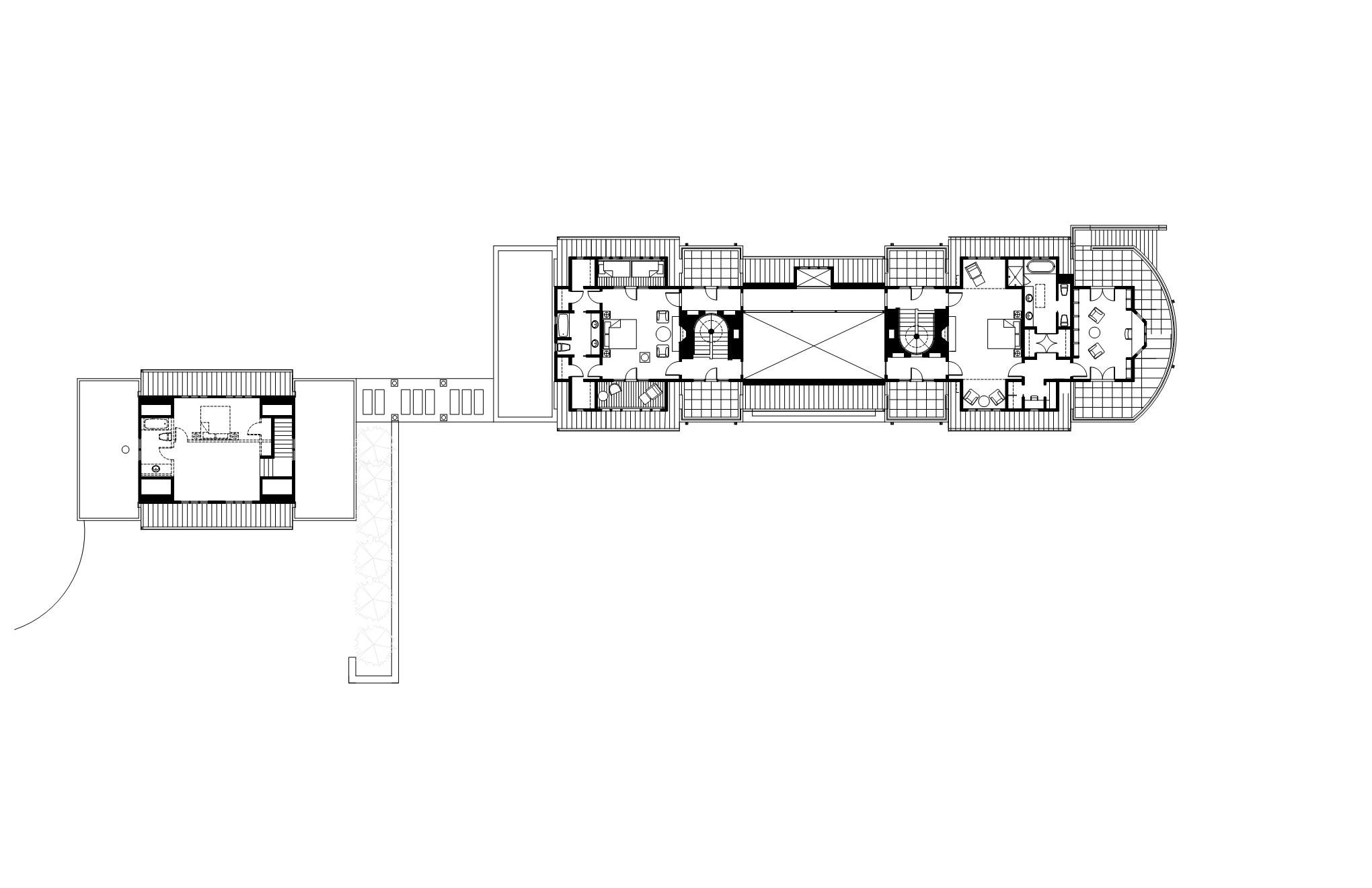
Concept Elevation and Floorplans
Photographed by Frank Ooms
Designed by Christian Barlock at UDG

